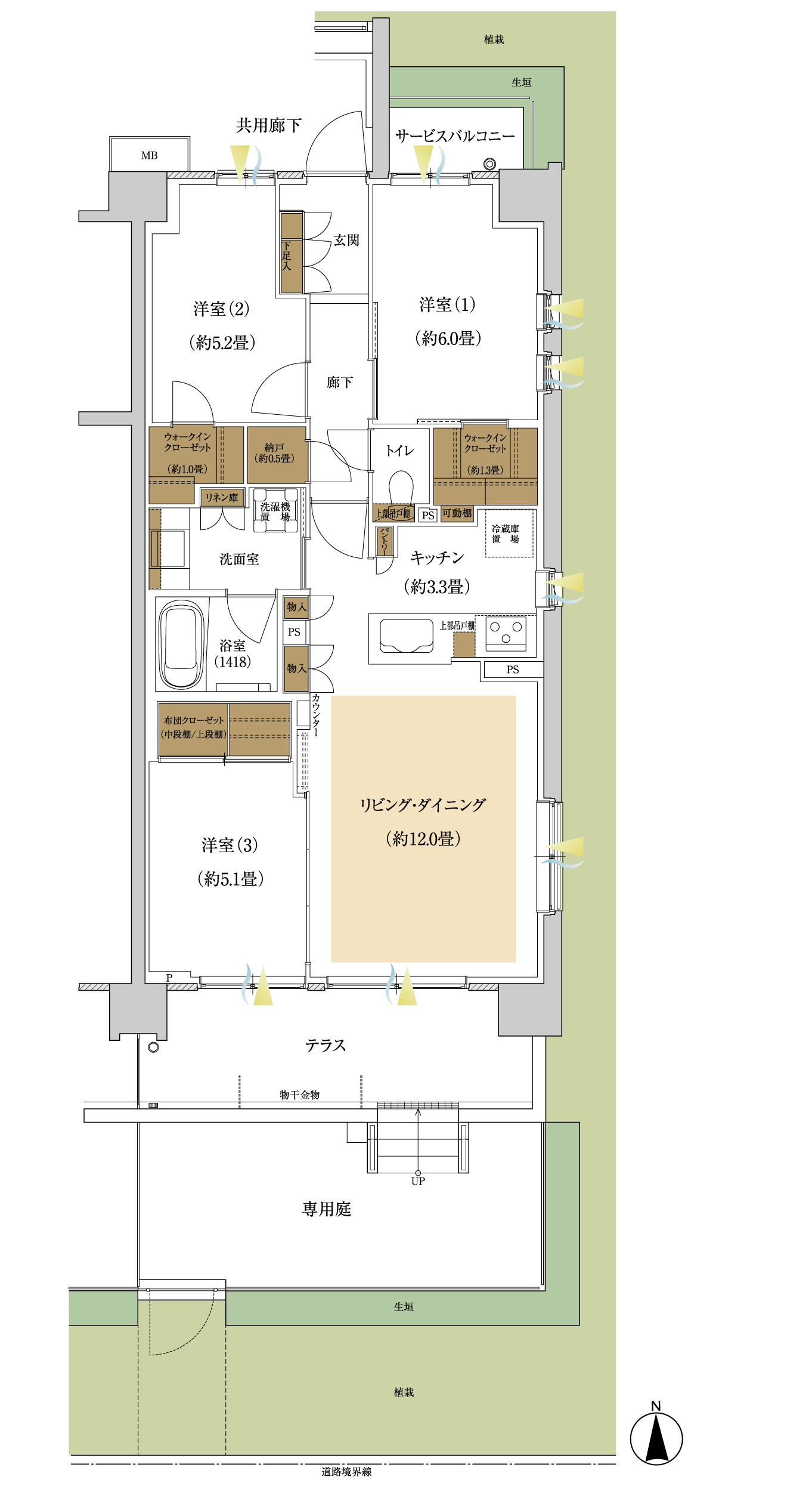
- 3LDK+2WIC+N+FUC
- 専有面積 / 73.20㎡(約22.14坪)
- バルコニー面積 / 11.26㎡ テラス面積 / 11.26㎡
- サービスバルコニー面積 / 1.80㎡ 専用庭面積 / 14.82㎡
- 収納率 / 約12.88%
WIC:ウォークインクローゼット N:納戸 FUC:布団クローゼット
※掲載の図⾯は設計段階の図⾯を基に描いたもので実際とは異なります。最新の図⾯集でご確認ください。
※掲載の間取り図⾯は代表タイプの間取りを掲載しております。
※住⼾により仕様・形状が異なる場合があります。









